Ecus is now rebranded as Cura Terrae.
Case study

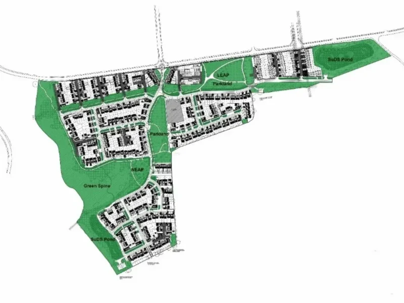
Keepmoat Homes – Warren Wood, Landscape Design

Detailed landscape design supporting the full planning application, for a Keepmoat Homes development project.

The client

Keepmoat Homes

Overview

The scheme was a large housing development comprising of 460 houses and a high proportion of Public Open Space (POS) including amenity space, play areas and an extensive Sustainable Drainage System (SuDS) network.

A large amount of existing vegetation was proposed for retention within the site providing an existing green infrastructure across the site and forming a mature foundation for the new development.

The results

  • Ecus produced detailed landscape designs for the entire site including the residential plots, public open space, play areas and SuDS planting.
  • A Landscape, Ecological and Woodland Management Plan (LEWMP) was produced with input from Ecus landscape, arboriculture and ecology teams to ensure that the existing and proposed vegetation has a comprehensive plan for its management going forward.